Duolingo HQ

Workspace/

“Claiming public space”

This project aimed to create an environment that supports the education culture while reflecting the core principles and atmosphere of a campus setting.

Creative Strategy

Space design: architecture & interiors

Environmental design & brand

F, F & E


The campus/

The social spaces evoke an outdoor, urban campus vibe and serve as a dynamic backdrop for human interaction, enhanced by a well-developed food and beverage program.

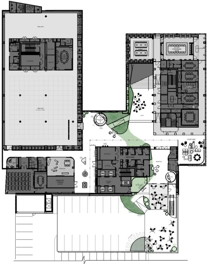
Four blocks behave as architectural buildings that differenciate the "in between” spaces as outdoor commons.

Entry sequence/

We embraced the challenge of accessing a workspace through the top of a garage structure. It feels like entering a park.

The patio serves as multi-purpose and event space during the warm months of the year.

User experience/

Several sketches, finishes palettes are created to achieve the deshired spirit for each space.

The user experience is carefully tailored with multiple studies of the flow diagrams to accomplish a smooth functioning of the program.

Client: Duolingo

Role: Architecture Lead and Senior Designer

Location: HQ, Pittsburgh, PA

Typology: Workspace

Scope: four levels of a bldg, 128,300 SF

Status: Construction to start in March 2025

Next
Next

Murray Dr House (coming up)